COBOSYSTEMS

ALUPROF MB-77HS

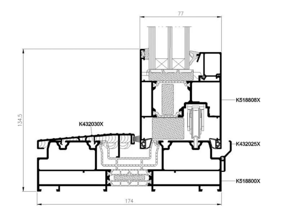
MB-77HS profielsnede
ALUPROF MB-77HS detail

ALUPROF MB-77 HS– Aluminium hefschuifamen met 2 of 3 rails, ook voor groot formaat ramen en hoekramen zonder kolom

Korte beschrijving

Schuiframen MB-77 HS ST en MB-77 HS HI, waarvan de kozijnen en de vleugels zijn samengesteld uit thermisch onderbroken aluminium profielen. Driekamerconstructie, met een centrale isolerende kamer met brede warme afstandhouders. Het gamma omvat zowel kozijnen voor tweerailssysteem als voor drierailssysteem, waardoor dubbele en driedubbele schuiframen mogelijk zijn, maar ook hoekcombinaties zonder hoekkolom, waarbij de doorgang dus volledig vrij is. De systeemhoogte onderaan is (kader+vleugel) 134,5 mm. Het ondeste deel wordt ingewerkt in de vloer, zodat de doorgang optimaal is.

Materialen:

  • Basismateriaal profielen: 100 % recycleerbaar aluminium
  • Thermische isolator: Polyamide, versterkt met 25% glasvezel.
  • Materiaal afdichtingsprofielen: soepel EPDM (volgens TV 221)
  • Oppervlaktebehandeling: gepoederlakt of geanodiseerd.

Afmetingen:

De raamvleugels hebben een maximale hoogte van 3,20 m, maximale breedte van 3,30 m en wegen maximaal 400 kg per vleugel.

  • Bouwdiepte profiel 2 rails: 174 mm.
  • Bouwdiepte profiel 3 rails: 271 mm.
  • Maximale afmetingen vleugel: H tot 3200 mm, L tot 3300 mm.
  • Maximaal gewicht vleugel: 400 kg.

Mechanische weerstand en stabiliteit:

  • Weerstand tegen windbelasting (STS 52:2005): klasse C3 (NBN EN 12210:2001 + /AC:2002)

Hygiëne, gezondheid, milieu:

  • Waterdichtheid (STS 52:2005): klasse 9A (600 Pa) (NBN EN 12208:2001).
  • Luchtdoorlatendheid (STS 52:2005): klasse 3 (NBN EN 12207:2000)

ALUPROF BELGIUM nv

Adres:
Zeelsebaan 61
9200 Dendermonde
Telefoon:
+32 (0)52 25 81 10
Website:

Technische Info van ALUPROF MB-77HS

Tech Fiche ALUPROF MB 77 HS

ALUPROF MB-77 HS – Aluminium hefschuifamen met 2 of 3 rails, ook voor groot formaat ramen en hoekramen zonder kolom

Bestekteksten van ALUPROF MB-77HS

BE Aluprof MB-77 HS

71.31.11.¦ 435.26.¦.¦02 Ramen / vensterdeuren, hefschuifsystemen aluminium / thermisch onderbroken
Aluminium hefschuifamen met 2 of 3 rails, ook voor groot formaat ramen en hoekramen zonder kolom

Andere producten

REFLEKSOL ZiiiP
ALUPROF MB-78 Ei30 en Ei60
ALUPROF MB-MT 50N
ALUPROF MB-Skyline Type R
ALUPROF MB-59HS
ALUPROF MB-FERROLINE
ALUPROF MB-79N
ALUPROF MB-86N

ONTVANG NIEUWS OVER BOUWMATERIALEN & PRODUCTEN - DIRECT IN DE INBOX

Loading
Je bent succesvol ingeschreven voor onze nieuwsbrief. Dank je wel!